售价:
69 万
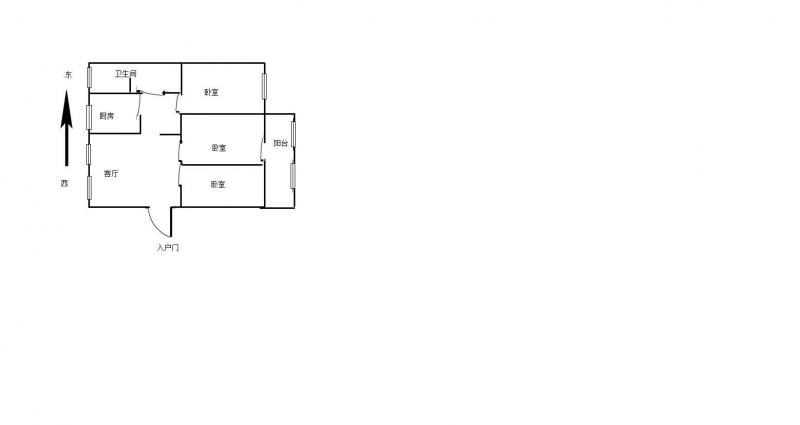
户型:
3室1厅1卫
建筑面积:
100.00 ㎡
业主急售随时看房交通便利近学校已满两年
单价:6900 元/㎡
类别:二手房
楼层:3楼/共3层
装修:精装
产权:70年
地址:青州师范附小北邻
划师范附小河滨小区 精装3室,69万
房屋户型好,地段好,位置佳,交通便利,周边环境优美,配套设施完善,周边有菜市场超市生活方便,非常不错的房源
业主因置换房源,已经看好房子,交了定金,需要该房源出售来置换,故该房源诚心出售,到价签字 !产权清晰,产证在手,没有纠纷,可以随时过户!如需实地勘察该房源,可以随时看房,钥匙房东直接交给我了 ,就在手上!如果您有其他购房需求也可告知我,为您查找其他合适房源!
本人从事房地产多年,好房多多,欢迎进入我的店铺查看,欢迎随时电话咨询,用我的服务为您置业安家保驾护航。
