售价:
105 万
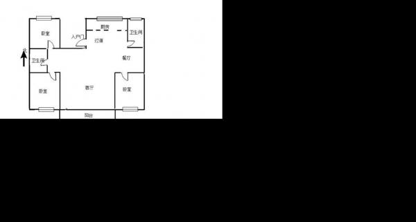
户型:
3室2厅2卫
建筑面积:
158.00 ㎡
青云紫府,158平2楼精装 2楼,105万随时看房
房屋户型好,地段好,位置佳,交通便利,周边环境优美,配套设施完善,周边有菜市场超市生活方便,非常不错的房源
业主因置换房源,已经看好房子,交了定金,需要该房源出售来置换,故该房源诚心出售,到价签字 !产权清晰,产证在手,没有纠纷,可以随时过户!如需实地勘察该房源,可以随时看房,钥匙房东直接交给我了 ,就在手上!如果您有其他购房需求也可告知我,为您查找其他合适房源!
新房楼盘《恒信风华尚品、安顺府、弥水春风、翡翠公馆、博岳府、望岳府、集美嘉悦、龙悦世家、翡翠世家、玫瑰世家等恒信多所楼盘!绿城兰园、大益华府、外滩华府、南阳澜庭、金庆御花园、青城樱园、天泰滟澜公馆、未来城、碧桂园和华邦 旭馨园 翰林苑 、颐和阳光、博慧苑等楼盘销售,看房可以联系!!!并且所有青州二手房都在销售,欢迎咨询...
