售价:
180 万
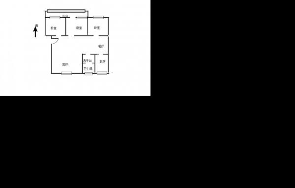
户型:
3室2厅1卫
建筑面积:
128.00 ㎡
业主急售随时看房繁华地段户型好带车库
单价:14062 元/㎡
类别:二手房
楼层:3楼/共5层
装修:中装
产权:70年
建于:2016年
朝向:朝南
小区:范公亭文苑
地址:昭德路与青州南路(海岱路)东二街交叉口西南角
1、2014年,市中心新小区。高绿化率。2、多层3楼128平+地上车库38平。3室朝阳,带装修3、证件齐全,满2年。过户税费低。可按揭贷款。4、钥匙在手,随时看房。
1、教育:师范附小、西书院,一中等2、周边配套:南有东夷文化广场,西有范公亭公园,周边银行、超市、医院等配套齐全
房东置换,诚心出售,欢迎看房,随时恭候您的到来。
本人从事房地产多年,好房多多,欢迎进入我的店铺查看,欢迎随时电话咨询,用我的服务为您置业安家保驾护航。
